Oferta nr SOL-LW-146887

cena 19000 zł
rodzaj Lokal
typ Wynajem
rodzaj budynku: wolnostojący
lokalizacja: Ząbki, Ząbki, Radzymińska
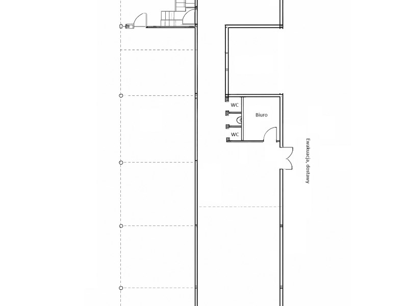
powierzchnia 270.00 m2
Do wynajęcia powierzchnia handlowo-usługowa 270 m2 w bardzo dobrej lokalizacji - przy ul. Radzymińskiej, okolice M1. - Gotowa część wystawiennicza i wyposażona strefa serwisowa - Doskonała ekspozycja witryn i wejście od strony ulicy - Duże możliwości aranżacyjne i brandingowe - Wysokie pomieszczenia, przyjazna przestrzeń - Bezpośredni dostęp z poziomu ulicy – brak barier architektonicznych - Miejsca parkingowe dla klientów Lokal umiejscowiony w budynku handlowo-usługowym przy ruchliwej ulicy, doskonale wyeksponowany. Możliwość umieszczenia licznych reklam zewnętrznych, oraz na terenie obiektu. Nieruchomość położona w strefie centrum handlowego M1 w Warszawie , przy jednej z głównych arterii komunikacyjnych. Miejsce o bardzo wysokim natężeniu ruchu samochodowego i pieszego, doskonale skomunikowane z innymi częściami miasta. Bezpośrednie sąsiedztwo dużych marek i centrów handlowych generuje stały przepływ klientów. Zapraszam!  

dane agenta Anita Jaszczur
licencja: 3154
605870106
wyślij email

Wyszukiwarka

Mieszkania na sprzedaż

Mieszkania na wynajem

Domy na sprzedaż

Domy na wynajem

Działki na sprzedaż

Działki na wynajem

Lokale na sprzedaż

Lokale na wynajem

Hale na sprzedaż

Hale na wynajem

Obiekty na sprzedaż

Obiekty na wynajem

O firmie

Kontakt

przejdź do pełnej wersji strony
zobacz także
© Sołtan mobilna
wykonanie: Aplikacje internetowe Galactica